法人概要
| 実 施(運営)主体 | 社会福祉法人 庄川福祉会 |
| 所在地 | 富山県砺波市庄川町金屋字岩黒38-1 |
| 構 造 | ●介護老人保健施設 ケアポート庄川 主建物/鉄筋コンクリート造り2階建地下1階…6,388㎡ 車 庫/鉄筋コンクリート造り 平屋建…156㎡ 燃料庫…23.7㎡ |
| ●ケアポート庄川デイサービスセンター…927㎡ | |
| ●デイサービスゆずの木 軽骨鉄骨造2階建…229㎡ | |
| 敷地面積 | 砺波市庄川町金屋字岩黒38-1…42,881㎡ 砺波市庄川町高儀新95-3…614㎡ |
アクセス
●ケアポート庄川まで砺波ICから車で約15分
| 介護老人保健施設 ケアポート庄川 | 入所定員(全室個室)…80名(短期含む) 通所リハビリ定員…40名(デイケア) 訪問リハビリ |
| ケアポート庄川デイサービスセンター | 定員…50名 |
|
ケアポート庄川 ●居宅介護支援事業所 |
|
| ケアポート庄川 予防ひろば | 定員…15名 |
| デイサービスゆずの木 | 定員…15名 |
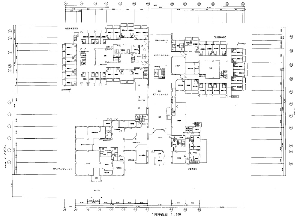
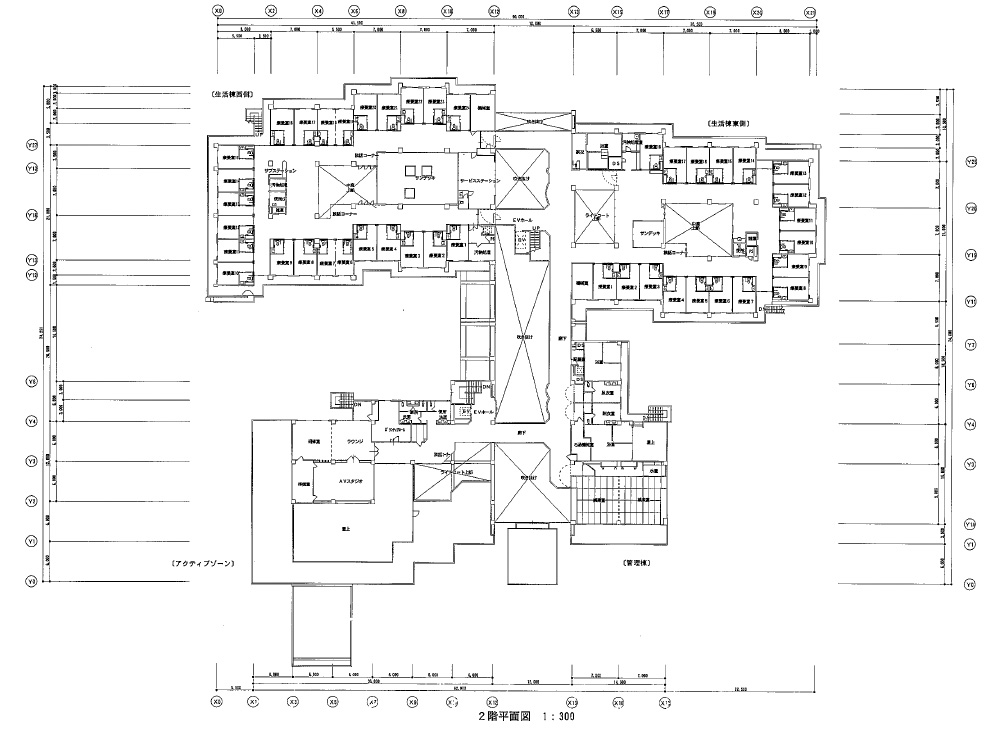
平面図配置図
- ケアポート庄川配置図
- ケアポート庄川平面図1
- ケアポート庄川平面図2






















